` New Homes in Calabash, NC - Site lists all new homes in Calabash, NC

New Home Communities in Calabash North Carolina
(843) 940-3609

This New Homes in Calabash site is focused solely on providing a simplified guide to all of the new home communities in Calabash, North Carolina. This web site is independently managed to serve and support development of the Calabash community and is a unique Calabash new home resource. All Calabash new home communities are presented without the influence or dependence of community or builder advertising. Input to improving the quality of this community resource presenting new construction in Calabash is welcomed and appreciated. Information on this site last updated May 2026.
Woodland Reserve
Calabash New Home Community By Lennar
Ash Little River Rd and Jamestown Ln, Ash, NC, 28420
Woodland Reserve by Lennar
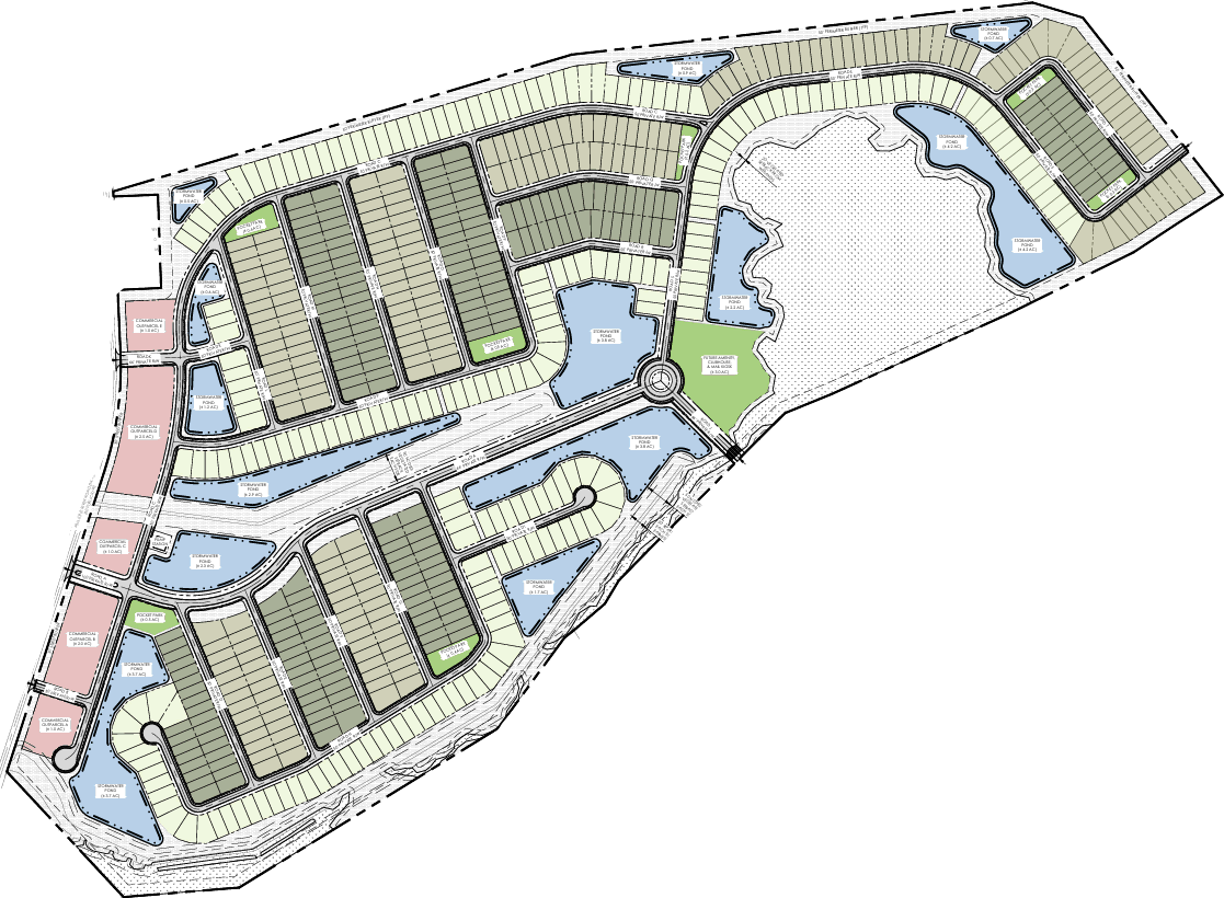
Preliminary Community Map of Woodland Reserve
Preliminary Site Map of Woodland Reserve in Ash, NC by Lennar

Prices (estimate only) Starting from :
Summary of this Calabash New Home Community:
Woodland Reserve is a new home community being proposed just north of Calabash NC in Ash, NC.

Woodland Reserve is conveniently located just north of Highway NC 179 and west of Highway NC 904.

Brunswick Planation is just a mile southeast from where the new home community of Woodland Reserve will be developed. Brunswick Plantation has a 27-hole championship golf course, designed by Willard Byrd and Clyde Johnston. The course is divided into three distinct 9-hole layouts: Azalea, Dogwood, and Magnolia, each offering unique challenges and scenic views.

The new home community of Woodland Reserve is being planned on an approximate 232.30 acre of land.

Preliminary plans for the new home community of Woodland Reserve are showing 673 single-family units.

Lennar will be the builder in Woodland Reserve.

Lennar has not yet announced timing or pricing for the new homes in Woodland Reserve.

NOTE: Woodland Reserve was formerly know as Farmstead Grove.

Existing Homes for Sale in this Calabash New Home Community:
Woodland Resreve is a new home community by Lennar by which home construction has not yet begun.

Homes for Sale in Woodland Reserve
New Homes for sale in Calabash

Planned Future Subdivisions in the Calabash Area
Woodland Reserve is one of several new future subdivisions planned for the Calabash area. See below for a more complete list of the future subdivisions planned for the Calabash area.
CommunityAddressSingle FamilyMulti-Family
BaylineThomasboro Road1796363
Calabash PointeHickman Rd NW & Hwy 170216
Cameron Pines101 Cameron Pines Drive1250
Del Webb Ocean Isle Beach3112 Wuther Squall Way150
EvershoreHighway 17 & Highway 904100100
Forest View TownhomesAsh-Little River Rd NW0107
Fox Hollow423 Pea Landing Rd NW1660
Hickman Branch TownhomesHickman Road NW0316
Jinny's Creek1178 Goose Creek Road SW1290
LaDane Gardens7060 Old Georgetown Road SW5250
Marshwood LandingOld Georgetown Rd & Ocean Isle Beach Rd550
McLamb StationNo 5 School Rd NW447184
Mossy Hill TownhomesHickman Road NW0592
Ocean Isle Palms1546 St. Lucia Dr SW2520560
Remuda RunOcean Isle Beach Road1400
Riverbank at Ocean IsleOcean Highway West (US 17)1150
Rye Pint TownhomesHickman Road NW0176
Sailors Haven776 Seaside Road2990
Solserra589 Paradise Bay Blvd10000
Thamesmen Village1125 Bay Road SW660
Woodland ReserveAsh Little River Rd and Jamestown Ln6730

NOTE: The estimated planned units above are for information purposes only and there is no guarantee on the accuracy of this data.
See Brunswick County Planning and Zoning for current data.

The Calabash community is rapidly growing and the new construction opportunities in Calabash are ever-changing. A significant amount of time is dedicated to ensuring that the content on this site is comprehensive and accurate. The efforts of our sponsors are greatly appreciated.
New Homes in Calabash
Primary Sponsor
Vsansant Realty Group - Full service real estate brokerage serving Calabash NC and the surrounding areas of Calabash NC
(843) 940-3609

Links to Useful Resources for Calabash, North Carolina